JR・地下鉄6駅7路線からアクセス可能
レアな不動産情報をお届けします。

03-6809-2346

03-3525-7289

トグルボタン

03-6809-2346

03-3525-7289

埼玉県

蒲生ビューハイツ 101

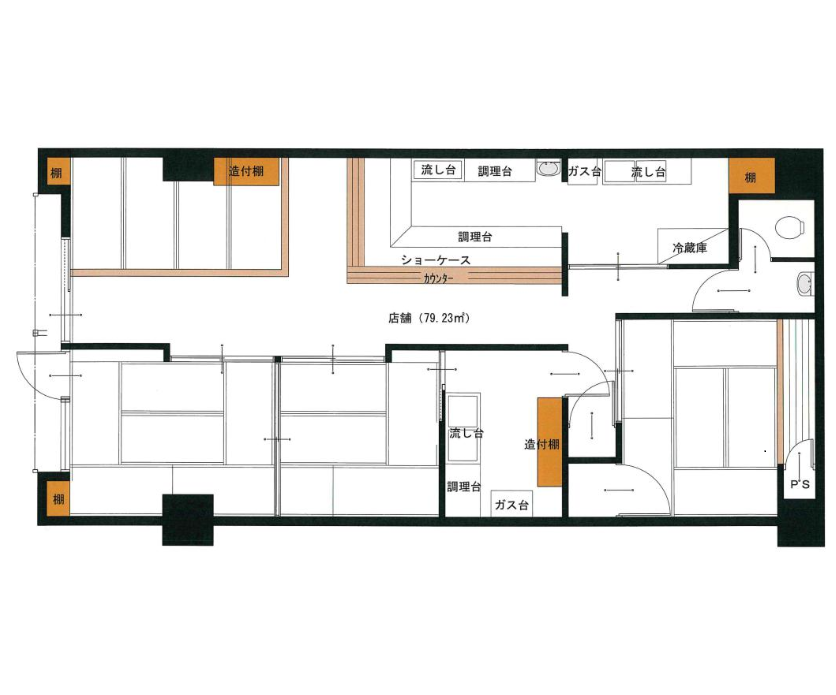
物件名 蒲生ビューハイツ 101
所在地 越谷市蒲生茜町19
交通 東武伊勢崎線【蒲生駅】徒歩1分
構造 RC造 所在階/階数 1階/地上10階
築年1981年5月面積㎡/坪79.23㎡/約23.96坪
賃料/坪単価 264,000円/月(坪単価:11,473円) 管理費/共益費
保証金(敷金) 賃料2ヶ月 礼金 賃料1ヶ月
償却 その他費用
契約種別/年数 2年 更新料
引渡し時期 相談 現況 居酒屋居抜き
取引態様 一般媒介 物件整理番号
備考